top of page

538 Johnson
IMD Renovation Project
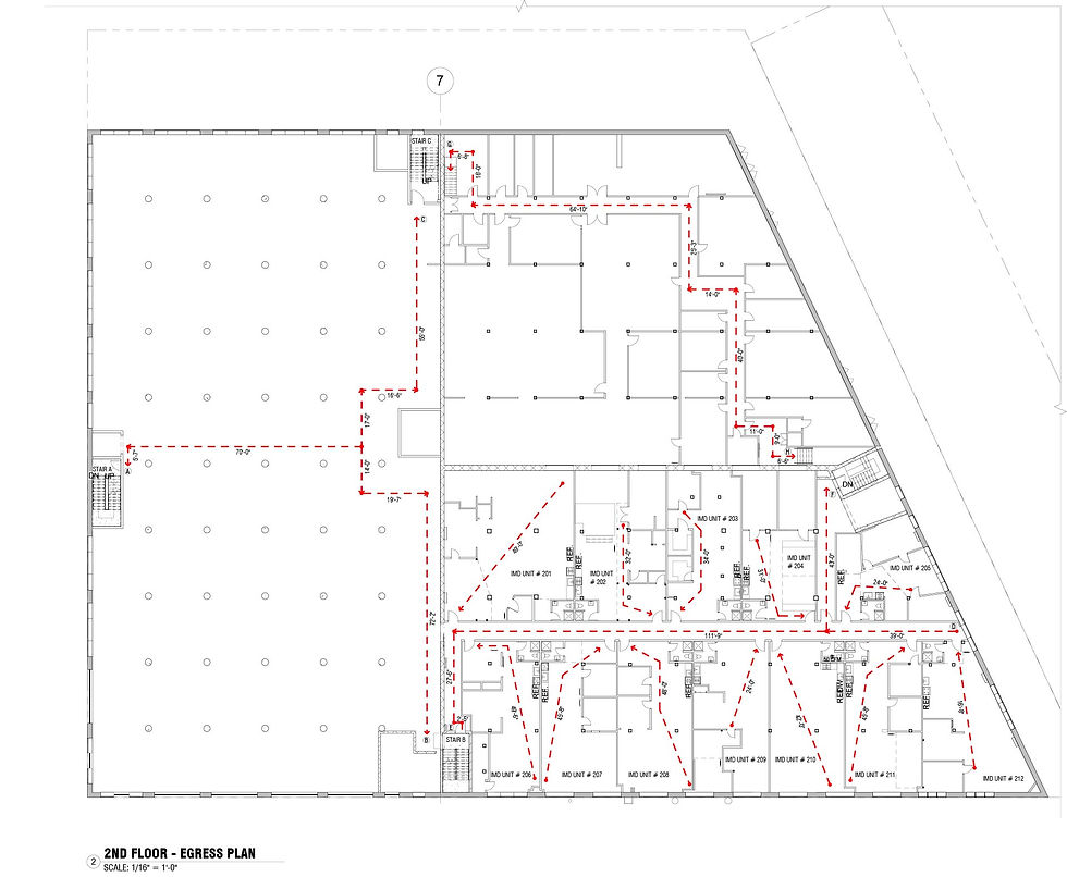
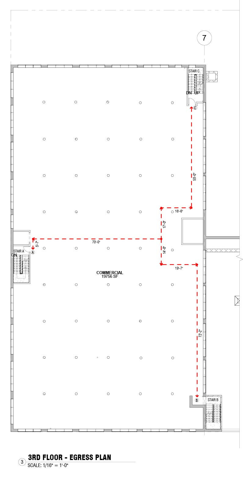
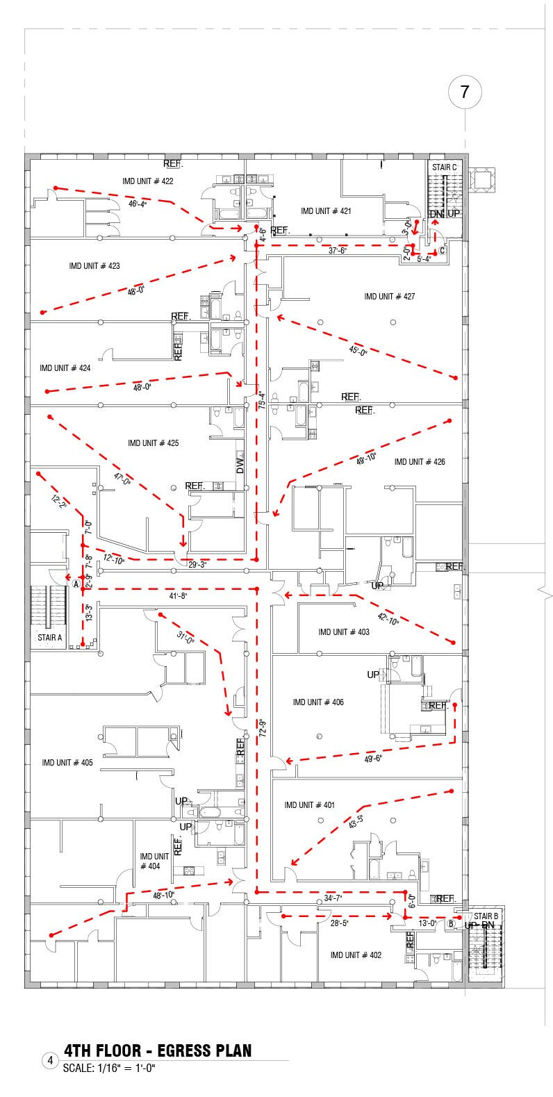
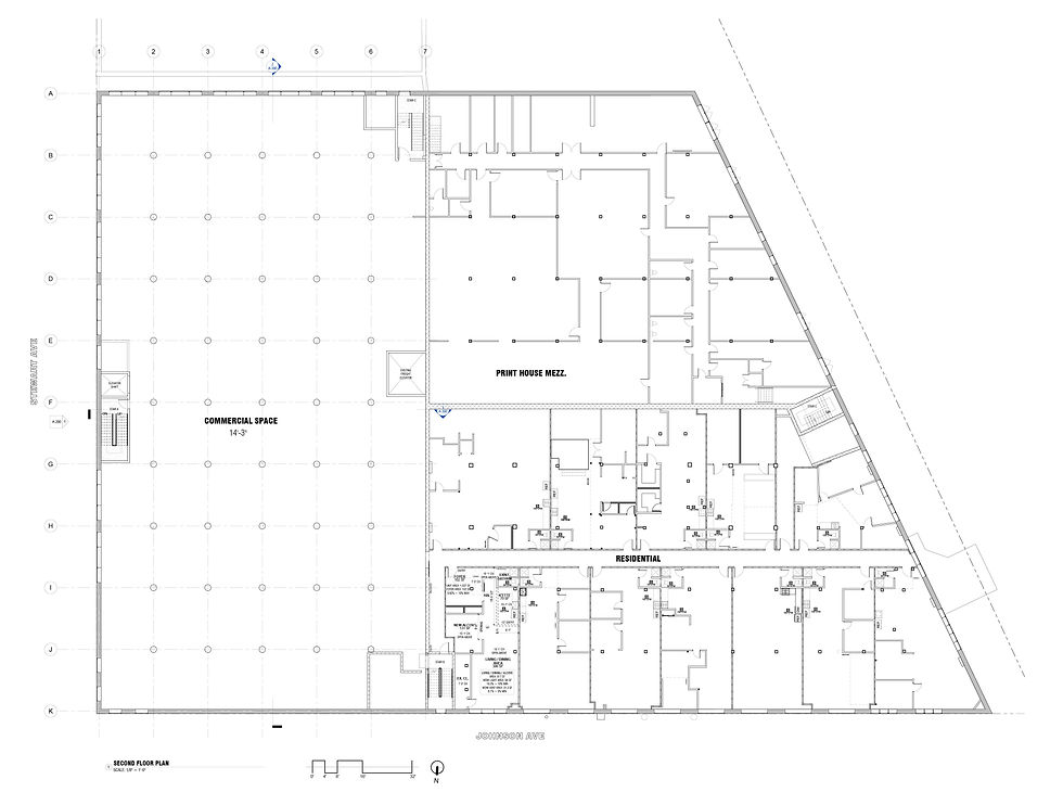
Assisted with the drafting and legalization process of an Interim Multiple Dwelling (IMD) mixed-use residential lofts/manufacturing building. Worked on Revit Model, surveying of existing conditions, plans and elevations.
Client /
538 Johnson Owner
Role /
Revit Drafter
Agency /
N/A
Year /
2020
bottom of page





