top of page

8-10 Grand Ave
8-10 Grand Ave
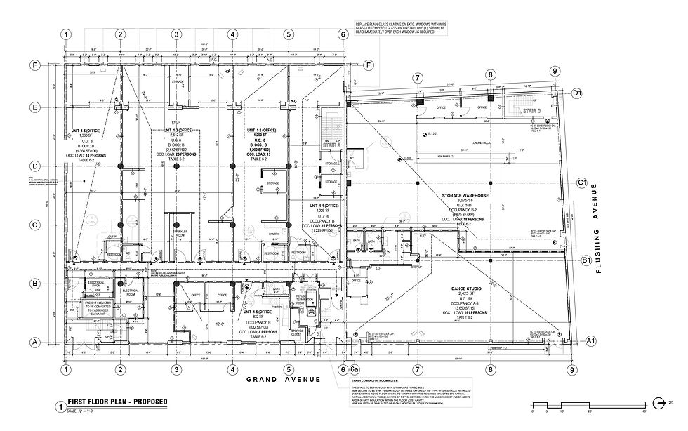
Conversion of 2 existing manufacturing buildings into residential and commercial buildings. Work included editing plans and elevations per PM instructions in CAD.
Client /
8-10 Grand Owner
Role /
CAD Drafter
Agency /
N/A
Year /
2020
bottom of page




