top of page

475 Kent Ave.
Interior Residential Construction Project
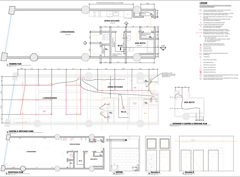
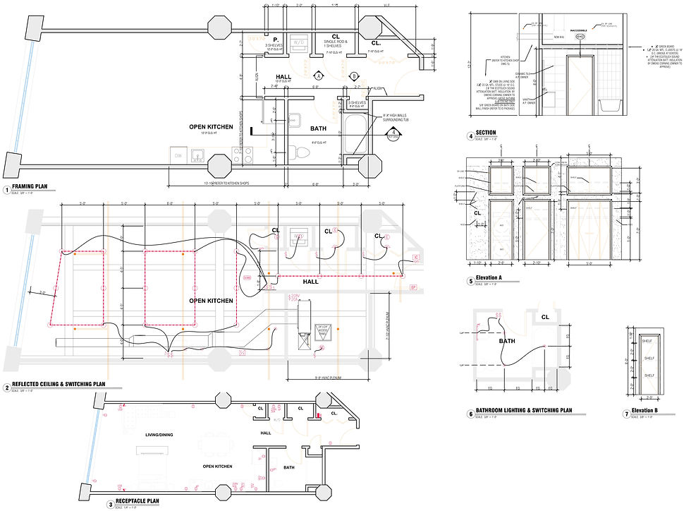
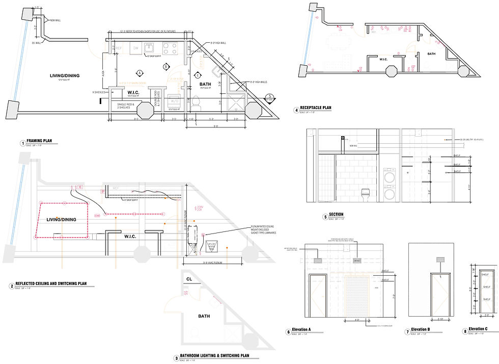
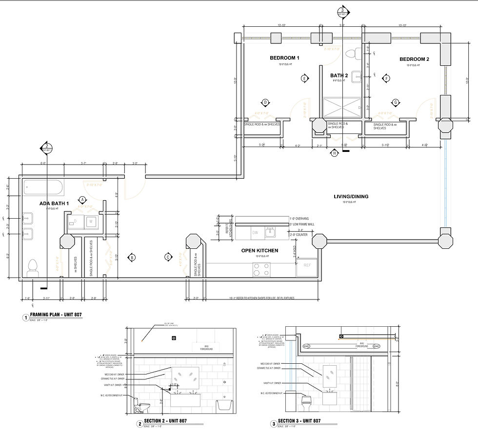
Interior construction of multi-story residential building. Worked on as-built drawings of interior apartments and lighting plans.
Role /
Reflected Ceiling Plans, As-Builts, Closet/Bath
Elevations, Lighting
Agency /
N/A
Year /
2018
bottom of page





